top of page
O-CA-L3
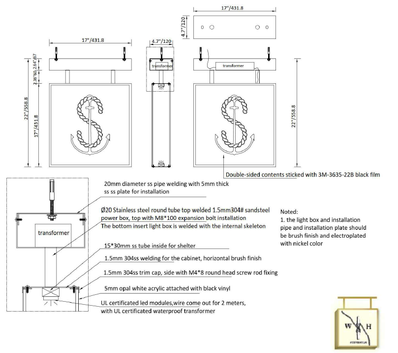
Size:
19”W x 4”D x (19+10)”H
Thickness:
Weight:
Description:
Sign.
Type:
COLOR TEMPERATURE:4000K,INPUT VOLTAGE:100-120V,LIGHT SOURCE:LED intergared Lighting
Material:
Metal,Acrylic
Durability:
3 Years Warranty
Finishing:
Textures:
Styles:
Usage:
Ceiling Fixture
Certificates:
UL

Flame Test:
Cleaning Code:
Specifications:

Site is still under development. Coming soon
bottom of page


